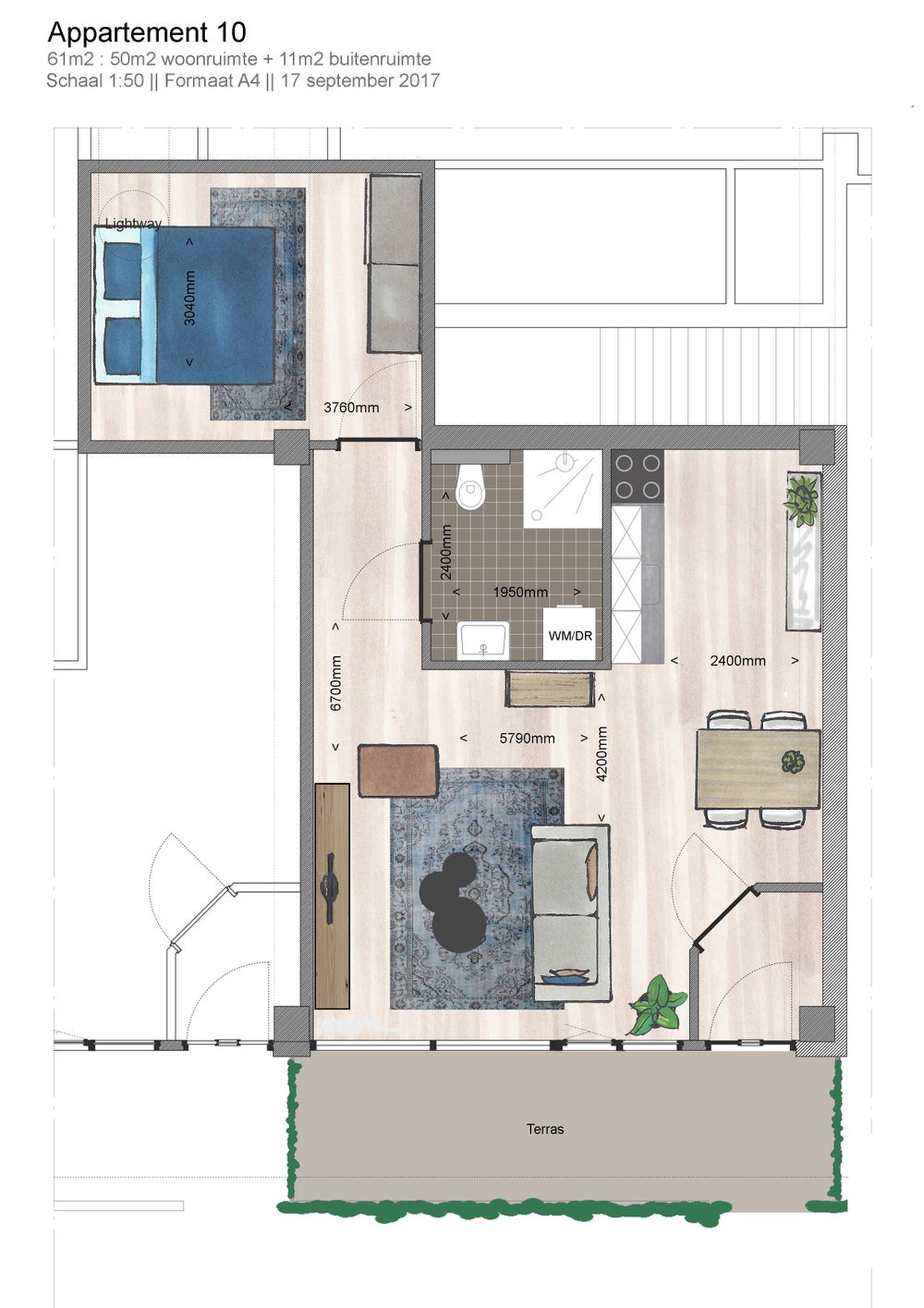
Soft furnishec apartment located on the corner, Frankrijkstraat- Van Thienenlaan and Van Pedestraat. The apartment is unfurnished and has a high ceiling of 3.7 meters with a modern industrial look. The apartment is located on the ground floor and has its own terrace. Free parking in the street. The apartment is also partly equipped with fixed lighting and curtains.
Global Lay out:
Entrance.
Living room with (laminate) floor and open kitchen.
The modern open kitchen is equipped with built-in appliances, namely; fridge with freezer, combi microwave, induction hob and extractor.
Separate bedroom.
Fully tiled bathroom with shower, vanity unit with 2 soft close drawers, towel radiator, toilet and connection for the washing machine and dryer.
Additional information:
NOTE: Photos displayed are from another apartment in the same complex. This will give you an idea of what the apartment approximately looks like. The floorplan shown shows the rooms.
Read moreTo ensure you don't miss any of our new housing offerings, you can here create an excellent search profile. You will then immediately receive an email for every new home that meets your wishes, so that you can be the first to respond and have the best chance of winning the home.